Navigation

Hallenbüro 4-seitig 5,00 x 2,50 m 12,5 m² (HB4-5025)

EUR 6.660,00

zzgl. 19 % USt
Artikelnr.
HB4-5025
4-seitig 12,5 m² 5045x2545 mm Lieferzeit: 4-5 Wochen
Unsere Fachberater an der Hotline stehen Ihnen bei Fragen zu unseren Produkten gern zur Verfügung. Sie erreichen die Hotline zu unseren Geschäftszeiten unter 0571 / 50 54 5-25
HallenbüroMeisterbürosSystemräumeLagerbürosMeisterkabinenSystem RS 45Systemtrennwändebis 20m² (klein)

Produktbeschreibung

Position

Menge

Bezeichnung

A

1 Stk.

Hallenbüro - becker.raumsysteme®

www.becker-raumsysteme.de/system-rs-45/

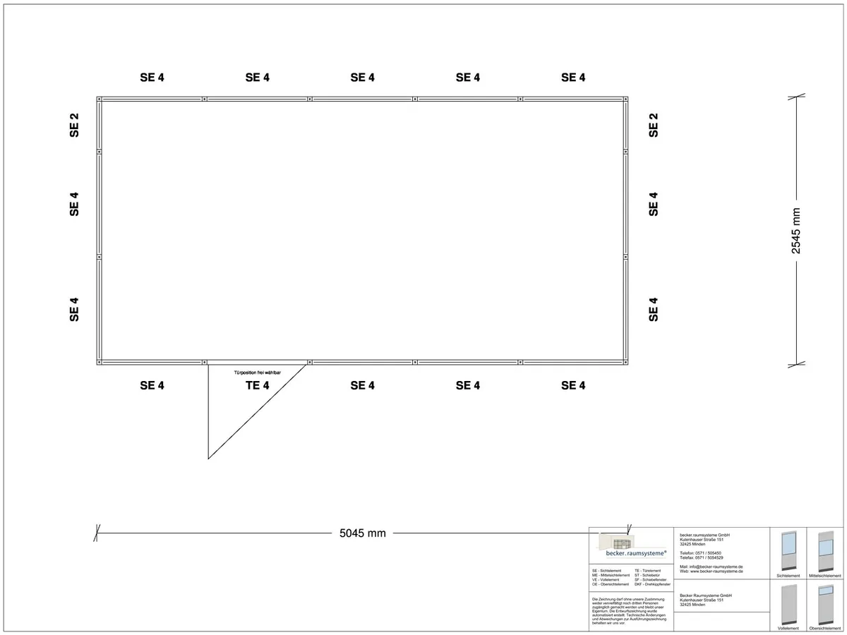
4-seitig, Abmessung: L x T = 2.545 x 5.045 mm
Innenmaß: L x T = 2.455 x 4.955 mm
lichte Raumhöhe 2.510 mm, Außenhöhe 2.677 mm

A.1

13 Stk.

Sichtelement, Raster 4 - 1.000 x 2.550 mm

ab Brüstungshöhe 1.090 mm verglast in, Floatglas 5 mm dick

A.2

2 Stk.

Sichtelement, Raster 2 - 500 x 2.550 mm

ab Brüstungshöhe 1.090 mm verglast in, Floatglas 5 mm dick

A.3

1 Stk.

ZK Flügeltür für Raster 4, DIN-L OK: 2055 mm

Türflügel mit Glasausschnitt, lichte Öffnung 813 x 1.984 mm, vorgerichtet für Profilzylinder (35 / 30 = 65 mm Länge), inkl. Metalltürblatt & Türzarge

A.4

1 Stk.

Aluminium-Drückergarnitur - Kurzschild

außen Drücker, innen Drücker

A.5

1 Stk.

Türaufbau-Sichtelement, Raster 4 - 1.000 x 2.550 mm

verglast in Floatglas 5 mm dick

A.6

12,84 m²

Deckenkonstruktion für Hallenbüro

einschl. Deckenauflagen und Deckenträger, Erweiterung der Decke separat aufgeführt

A.7

12,84 m²

Erweiterung Deckenkonstruktion, MFA-Decke

Mineralfaserakustikdecke, abgehängtes System, Struktur Fresko, Rastermaß 625 x 625 mm, einschl. Abhängematerial

A.8

12,84 m²

Erweiterung Deckenkonstruktion, Staubabdeckung

Abdeckung mit Spanplatte, P5, 25 mm, NICHT für eine Begehbarkeit ausgelegt, Ausführung nicht als Lagerfläche geeignet

 

 

Lieferung / Montage / Elektrischer Anschluß

Die Lieferung der Hallenbüros erfolgt als Bausatz in Einzelteilen. Die Lieferkosten innerhalb Deutschland (Festland) sind frei Bordsteinkante im Preis enthalten. Das Abladen der Einzelteile auf Paletten erfolgt bauseits. Die Montage durch erfahrene Fachmonteure vor Ort erfolgt gegen Aufpreis. Elektroinstallationen gehören nicht zum Montageumfang. Die Einrichtungsgegenstände auf den Bildern gehören nicht zum Lieferumfang.

Produktinformationen

Das Hallenbüro HB4-5025 ist die perfekte Lösung für Unternehmen, die Wert auf Flexibilität und Funktionalität legen. Mit einer großzügigen Grundfläche von 12,5 m² bietet dieses freistehende Büro nicht nur ausreichend Platz für effizientes Arbeiten, sondern auch die Möglichkeit, eine angenehme Arbeitsatmosphäre zu schaffen. Stellen Sie sich vor, wie Ihre Mitarbeiter in einem lichtdurchfluteten Raum arbeiten, der sowohl Ruhe als auch Konzentration fördert - ein Ort, an dem Ideen sprießen und Produktivität gesteigert wird.

Die emotionale Ansprache dieses Produkts liegt in der Schaffung einer Umgebung, die das Wohlbefinden Ihrer Mitarbeiter unterstützt. Ein modernes Hallenbüro trägt dazu bei, das Arbeitsumfeld positiv zu gestalten und somit die Zufriedenheit und Motivation im Team zu erhöhen. Durch die Verwendung hochwertiger Materialien und durchdachter Designs wird nicht nur ein professionelles Erscheinungsbild vermittelt, sondern auch ein Gefühl der Zugehörigkeit und des Engagements.

Einzigartige Argumente des Hallenbüros HB4-5025 sind seine vierseitige Freistehende Bauweise sowie die Möglichkeit, verschiedene Glastypen auszuwählen. Die Sichtelemente aus 5 mm dickem Floatglas sorgen für eine klare Sicht und fördern die Kommunikation innerhalb des Teams, während die Mineralfaserakustikdecke mit Spanplattenabdeckung für eine angenehme Akustik sorgt. Darüber hinaus kann die Tür individuell angepasst werden, um den spezifischen Anforderungen Ihres Unternehmens gerecht zu werden.

Auf technischer Seite überzeugt das Hallenbüro mit präzisen Abmessungen von 5.045 x 2.545 mm (Außenmaß) und einem Innenmaß von 4.955 x 2.455 mm. Mit einer lichten Raumhöhe von 2.510 mm und einer Außenhöhe von 2.677 mm bietet es ausreichend Platz für kreative Entfaltung. Die Montage erfolgt durch unsere Montagepartner vor Ort, um sicherzustellen, dass Ihr neues Büro schnell und professionell bereitgestellt wird. Zudem sind die Lieferkosten innerhalb Deutschlands bereits in unseren Shoppreisen enthalten, was Ihnen zusätzliche Planungssicherheit gibt.

Das Hallenbüro HB4-5025 eignet sich ideal für verschiedene Anwendungen: Ob als temporäres Büro in Produktionsstätten, als Besprechungsraum oder als Rückzugsort für konzentriertes Arbeiten - die Möglichkeiten sind vielfältig. Ihre Mitarbeiter werden es schätzen, in einem modernen und funktionalen Umfeld tätig zu sein.

Vertrauen Sie auf unsere langjährige Erfahrung in der Branche und profitieren Sie von Lösungen, die auf Robustheit und Langlebigkeit ausgelegt sind. Becker Raumsysteme GmbH hat sich über fast drei Jahrzehnte einen Namen als Anbieter hochwertiger modulare Raumsysteme gemacht.

Nutzen Sie die Gelegenheit, Ihr Arbeitsumfeld zu optimieren! Kontaktieren Sie uns noch heute für weitere Informationen zum Hallenbüro HB4-5025 oder um eine individuelle Beratung anzufordern. Lassen Sie uns gemeinsam an der Schaffung eines inspirierenden Arbeitsplatzes arbeiten!