Hallenbüro als Doppelstock 4-seitig 5,50 x 4,00 m 22 m² (HD4-5540)

EUR 29.030,00

zzgl. 19 % USt
Artikelnr.
HD4-5540
4-seitig 22 m² 5545x4045 mm Lieferzeit: 5-6 Wochen
Unsere Fachberater an der Hotline stehen Ihnen bei Fragen zu unseren Produkten gern zur Verfügung. Sie erreichen die Hotline zu unseren Geschäftszeiten unter 0571 / 50 54 5-25
Hallenbüro doppelstöckigMeisterbürosSystemräumeLagerbürosMeisterkabinenSystem RS 45Systemtrennwändebis 35m² (mittel)

Produktbeschreibung

Position

Menge

Bezeichnung

A

1 Stk.

Zweigeschossiges Hallenbüro - becker.raumsysteme®

www.becker-raumsysteme.de/system-rs-45/

Bestehend aus Stahlbaubühne, Erd- und Obergeschoss
Gesamthöhe der Anlage 5.527 mm (zzgl. Montagefreiheit)

Erdgeschossausführung als Trennwand
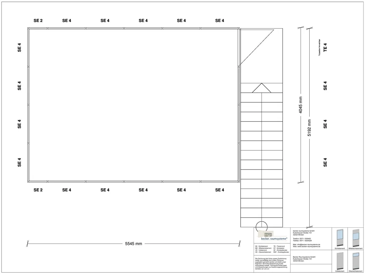
4-seitig, Abmessung: L x T = 5.545 x 4.045 mm
Innenmaß: L x T = 5.455 x 3.955 mm
lichte Raumhöhe 2.510 mm, Wandhöhe 2.790 mm

Obergeschossausführung als Hallenbüro
4-seitig, Abmessung: L x T = 5.545 x 4.045 mm

A.1

1 Stk.

Stahlbaubühne - becker.raumsysteme®

Bühnenlänge: 5575 mm, Bühnenbreite: 4075 mm, Bühnenhöhe: 2810 mm, Bühnenfläche: ca. 24,38 m² einschl. Treppenpodest, Lichte Bühnenhöhe: 2590 mm, Oberkante Bühnenbelag: 2850 mm, , Belastung: 300 kg/m² gleichmäßig verteilte Last, Flächenpressung der Stützen ca. 8,32 kg/cm², Stützenlast ca. 2531 kg, Anzahl Stützen: 4 Stk., , Ausführung: , Die Stahlbaubühne besteht aus Haupt- und Nebenträgern, stehend auf Stützen. Anzahl und Größe der Felder nach statischer Auslegung.

A.2

24,09 m²

Bühnenbelag, Spanplatte, P6, 38 mm, Oberflächen roh/roh

Verlegeplatte ohne Zuschnitt, Verlegung mit Nut und Feder, Der Stoß der Platten erfolgt immer auf einem Träger

A.3

24,09 m²

PVC-Fliesen, 608 x 608 x 2 mm, Farbe anthrazit 1060

komplett mit Kleber und Schweißdraht, antistatisch, Elastischer homogener PVC-Bodenbelag, einschichtig, richtungsorientiert, durchgehend marmoriert, Brandklasse B1, Nutzungsklasse 34 + 43, Beanspruchungsklasse K5

A.4

1 Stk.

Treppenaufgang - becker.raumsysteme®

Anschluß über Treppenpodest an Stahlbaubühne, , Treppenausführung:, Podesthöhe: 2.850 mm, Treppenbreite: 1.090 mm einschl. Geländer , Treppenlaufbreite: 1.000 mm nutzbar , Treppenlänge: ca. 5.186 mm einschl. Treppenpodest , Treppenneigung: 36° gemäß ZH 1/113 , (Richtlinien der Gewerblichen Berufsgenossenschaften) , , Ausführung: , Stahlwangen mit beidseitigem Sicherheitsgeländer, Treppenpodest und Holztrittstufen

A.5

1 Stk.

Trennwand - becker.raumsysteme®

Trennwand (Untergeschoss), , (Materialaufstellung in Unterpositionen)

A.6

19,18 lfm

Deckenschiene 44 mm

Zur Aufnahme der Trennwand

A.7

17 Stk.

Mittelsichtelement, Raster 4 - 1.000 x 2.790 mm

verglast ab 1.090 mm bis 2.055 mm in, Floatglas 5 mm dick, darüber Ausführung als Vollelement

A.8

2 Stk.

Mittelsichtelement, Raster 2 - 500 x 2.790 mm

verglast ab 1.090 mm bis 2.055 mm in, Floatglas 5 mm dick, darüber Ausführung als Vollelement

A.9

1 Stk.

ZK Flügeltür für Raster 4, DIN-L OK: 2055 mm

Türflügel mit Glasausschnitt, lichte Öffnung 813 x 1.984 mm, vorgerichtet für Profilzylinder (35 / 30 = 65 mm Länge), inkl. Metalltürblatt & Türzarge

A.10

1 Stk.

Aluminium-Drückergarnitur - Kurzschild

außen Drücker, innen Drücker

A.11

1 Stk.

Türaufbau-Mittelsichtelement, Raster 4 - 1.000 x 2.790 mm

verglast bis 2.500 mm in Floatglas 5 mm dick darüber Ausführung als Vollelement

A.12

22,43 m²

MFA-Decke ohne Tragekonstruktion

Mineralfaserakustikdecke, abgehängtes System, Struktur Fresko, Rastermaß 625 x 625 mm, einschl. Abhängematerial

A.13

1 Stk.

Hallenbüro - becker.raumsysteme®

Hallenbüro (Obergeschoss), , (Materialaufstellung in Unterpositionen)

A.14

17 Stk.

Sichtelement, Raster 4 - 1.000 x 2.550 mm

ab Brüstungshöhe 1.090 mm verglast in, Floatglas 5 mm dick

A.15

2 Stk.

Sichtelement, Raster 2 - 500 x 2.550 mm

ab Brüstungshöhe 1.090 mm verglast in, Floatglas 5 mm dick

A.16

1 Stk.

ZK Flügeltür für Raster 4, DIN-L OK: 2055 mm

Türflügel mit Glasausschnitt, lichte Öffnung 813 x 1.984 mm, vorgerichtet für Profilzylinder (35 / 30 = 65 mm Länge), inkl. Metalltürblatt & Türzarge

A.17

1 Stk.

Aluminium-Drückergarnitur - Kurzschild

außen Drücker, innen Drücker

A.18

1 Stk.

Türaufbau-Sichtelement, Raster 4 - 1.000 x 2.550 mm

verglast in Floatglas 5 mm dick

A.19

22,43 m²

Deckenkonstruktion für Hallenbüro

einschl. Deckenauflagen und Deckenträger, Erweiterung der Decke separat aufgeführt

A.20

22,43 m²

Erweiterung Deckenkonstruktion, MFA-Decke

Mineralfaserakustikdecke, abgehängtes System, Struktur Fresko, Rastermaß 625 x 625 mm, einschl. Abhängematerial

A.21

22,43 m²

Erweiterung Deckenkonstruktion, Staubabdeckung

Abdeckung mit Spanplatte, P5, 25 mm, NICHT für eine Begehbarkeit ausgelegt, Ausführung nicht als Lagerfläche geeignet

 

 

Lieferung / Montage / Elektrischer Anschluß

Die Lieferung der Hallenbüros erfolgt als Bausatz in Einzelteilen. Die Lieferkosten innerhalb Deutschland (Festland) sind frei Bordsteinkante im Preis enthalten. Das Abladen der Einzelteile auf Paletten erfolgt bauseits. Die Montage durch erfahrene Fachmonteure vor Ort erfolgt gegen Aufpreis. Elektroinstallationen gehören nicht zum Montageumfang. Die Einrichtungsgegenstände auf den Bildern gehören nicht zum Lieferumfang.

Produktinformationen

In einer zunehmend dynamischen industriellen Landschaft ist es entscheidend, effiziente und funktionale Lösungen zu finden, die den Anforderungen an moderne Arbeitsumgebungen gerecht werden. Das zweigeschossige Hallenbüro als Doppelstock, mit einer großzügigen Grundfläche von 22 m², bietet Ihnen die Möglichkeit, wertvollen Platz in Ihrer Lager- oder Produktionshalle optimal zu nutzen. Durch die freistehende Bauweise wird nicht nur der vorhandene Raum effizient genutzt, sondern auch eine angenehme Arbeitsatmosphäre geschaffen, die die Produktivität Ihrer Mitarbeiter steigert.

Stellen Sie sich vor, wie Ihre Mitarbeiter in einem hellen, modernen Büro arbeiten, das sich nahtlos in Ihre bestehende Infrastruktur integriert. Die emotionale Ansprache dieses Produkts liegt in der Schaffung eines komfortablen und funktionalen Arbeitsumfelds, das sowohl Kreativität als auch Effizienz fördert. Mit unserem Hallenbüro erhalten Sie nicht nur einen Arbeitsplatz - Sie schaffen einen Raum für Innovation und Zusammenarbeit.

Die einzigartigen Argumente unseres Hallenbüros umfassen die robuste Konstruktion aus warmgewalzten Stahlprofilen und die flexible Anpassbarkeit an Ihre spezifischen Bedürfnisse. Die hochwertige Verarbeitung zeigt sich in Details wie dem stabilen Bühnenbelag aus Spanplatte P6 sowie den eleganten Sichtelementen aus 5 mm dickem Floatglas. Darüber hinaus sorgt die Mineralfaserakustikdecke für ein angenehmes Raumklima und trägt zur Lärmminderung bei.

In Bezug auf die Produktspezifikationen überzeugt das Hallenbüro durch präzise Maße: Die Außenabmessungen von 5.545 x 4.045 mm und eine lichte Raumhöhe von 2.510 mm bieten ausreichend Platz für ein effektives Arbeiten. Die Gesamthöhe der Anlage beträgt 5.527 mm, wobei die Bühnenhöhe mit 2.810 mm ideal ist, um eine optimale Sicht und Bewegungsfreiheit zu gewährleisten. Die Ausstattung umfasst auch einen Treppenaufgang mit Geländer sowie Holztrittstufen aus Mehrschichtplatten, die Sicherheit und Komfort bieten.

Die Anwendungsbeispiele für unser Hallenbüro HD4-5540 sind vielfältig: Ob als Verwaltungsraum in einer Produktionshalle, als Besprechungsraum oder als Schulungsbereich - die Möglichkeiten sind nahezu unbegrenzt. Unternehmen profitieren von dieser flexiblen Lösung, indem sie ihre Räumlichkeiten effizient gestalten und gleichzeitig den Platz unterhalb der Büroebene für Lagerzwecke oder Maschinen nutzen.

Vertrauen Sie auf unsere langjährige Erfahrung im Bereich modulare Raumsysteme. Becker Raumsysteme GmbH steht für Qualität und Zuverlässigkeit. Unsere Montagepartner garantieren eine professionelle Montage vor Ort und stehen Ihnen bei Fragen zur Elektroinstallation zur Seite. Zudem sind die Lieferkosten innerhalb Deutschlands bereits in unseren Shoppreisen enthalten, was Ihnen zusätzliche Planungssicherheit gibt.

Nutzen Sie jetzt die Gelegenheit und gestalten Sie Ihre Arbeitsumgebung neu! Kontaktieren Sie uns noch heute, um mehr über unser freistehendes Hallenbüro zu erfahren und lassen Sie sich von unseren maßgeschneiderten Lösungen überzeugen. Gemeinsam optimieren wir Ihre Betriebsabläufe und schaffen Räume für Ihre Zukunft!