Hallenbüro auf Stahlbau 4-seitig 6,50 x 3,50 m 22,75 m² (HS4-6535)

EUR 22.060,00

zzgl. 19 % USt
Artikelnr.
HS4-6535
4-seitig 22,75 m² 6545x3545 mm Lieferzeit: 5-6 Wochen
Unsere Fachberater an der Hotline stehen Ihnen bei Fragen zu unseren Produkten gern zur Verfügung. Sie erreichen die Hotline zu unseren Geschäftszeiten unter 0571 / 50 54 5-25
Hallenbüro auf BühneMeisterbürosSystemräumeLagerbürosMeisterkabinenSystem RS 45Systemtrennwändebis 35m² (mittel)

Produktbeschreibung

Position

Menge

Bezeichnung

A

1 Stk.

Hallenbüro auf Stahlbaubühne - becker.raumsysteme®

www.becker-raumsysteme.de/system-rs-45/

Bestehend aus Stahlbaubühne und Obergeschoss
Gesamthöhe der Anlage 5.527 mm

Obergeschossausführung als Hallenbüro
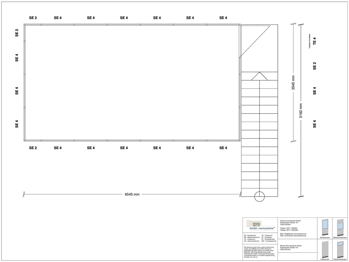
4-seitig, Abmessung: L x T = 6.545 x 3.545 mm
Innenmaß: L x T = 6.455 x 3.455 mm
lichte Raumhöhe 2.510 mm, Wandhöhe 2.790 mm

A.1

1 Stk.

Stahlbaubühne - becker.raumsysteme®

Bühnenlänge: 6575 mm, Bühnenbreite: 3575 mm, Bühnenhöhe: 2810 mm, Bühnenfläche: ca. 25,17 m² einschl. Treppenpodest, Lichte Bühnenhöhe: 2630 mm, Oberkante Bühnenbelag: 2850 mm, , Belastung: 300 kg/m² gleichmäßig verteilte Last, Flächenpressung der Stützen ca. 8,59 kg/cm², Stützenlast ca. 2610 kg, Anzahl Stützen: 6 Stk., , Ausführung: , Die Stahlbaubühne besteht aus Haupt- und Nebenträgern, stehend auf Stützen. Anzahl und Größe der Felder nach statischer Auslegung.

A.2

24,86 m²

Bühnenbelag, Spanplatte, P6, 38 mm, Oberflächen roh/roh

Verlegeplatte ohne Zuschnitt, Verlegung mit Nut und Feder, Der Stoß der Platten erfolgt immer auf einem Träger

A.3

24,86 m²

PVC-Fliesen, 608 x 608 x 2 mm, Farbe anthrazit 1060

komplett mit Kleber und Schweißdraht, antistatisch, Elastischer homogener PVC-Bodenbelag, einschichtig, richtungsorientiert, durchgehend marmoriert, Brandklasse B1, Nutzungsklasse 34 + 43, Beanspruchungsklasse K5

A.4

1 Stk.

Treppenaufgang - becker.raumsysteme®

Anschluß über Treppenpodest an Stahlbaubühne, , Treppenausführung:, Podesthöhe: 2.850 mm, Treppenbreite: 1.090 mm einschl. Geländer , Treppenlaufbreite: 1.000 mm nutzbar , Treppenlänge: ca. 5.186 mm einschl. Treppenpodest , Treppenneigung: 36° gemäß ZH 1/113 , (Richtlinien der Gewerblichen Berufsgenossenschaften) , , Ausführung: , Stahlwangen mit beidseitigem Sicherheitsgeländer, Treppenpodest und Holztrittstufen

A.5

1 Stk.

Hallenbüro - becker.raumsysteme®

Hallenbüro (Obergeschoss), , (Materialaufstellung in Unterpositionen)

A.6

17 Stk.

Sichtelement, Raster 4 - 1.000 x 2.550 mm

ab Brüstungshöhe 1.090 mm verglast in, Floatglas 5 mm dick

A.7

4 Stk.

Sichtelement, Raster 2 - 500 x 2.550 mm

ab Brüstungshöhe 1.090 mm verglast in, Floatglas 5 mm dick

A.8

1 Stk.

ZK Flügeltür für Raster 4, DIN-L OK: 2055 mm

Türflügel mit Glasausschnitt, lichte Öffnung 813 x 1.984 mm, vorgerichtet für Profilzylinder (35 / 30 = 65 mm Länge), inkl. Metalltürblatt & Türzarge

A.9

1 Stk.

Aluminium-Drückergarnitur - Kurzschild

außen Drücker, innen Drücker

A.10

1 Stk.

Türaufbau-Sichtelement, Raster 4 - 1.000 x 2.550 mm

verglast in Floatglas 5 mm dick

A.11

23,20 m²

Deckenkonstruktion für Hallenbüro

einschl. Deckenauflagen und Deckenträger, Erweiterung der Decke separat aufgeführt

A.12

23,20 m²

Erweiterung Deckenkonstruktion, MFA-Decke

Mineralfaserakustikdecke, abgehängtes System, Struktur Fresko, Rastermaß 625 x 625 mm, einschl. Abhängematerial

A.13

23,20 m²

Erweiterung Deckenkonstruktion, Staubabdeckung

Abdeckung mit Spanplatte, P5, 25 mm, NICHT für eine Begehbarkeit ausgelegt, Ausführung nicht als Lagerfläche geeignet

 

 

Lieferung / Montage / Elektrischer Anschluß

Die Lieferung der Hallenbüros erfolgt als Bausatz in Einzelteilen. Die Lieferkosten innerhalb Deutschland (Festland) sind frei Bordsteinkante im Preis enthalten. Das Abladen der Einzelteile auf Paletten erfolgt bauseits. Die Montage durch erfahrene Fachmonteure vor Ort erfolgt gegen Aufpreis. Elektroinstallationen gehören nicht zum Montageumfang. Die Einrichtungsgegenstände auf den Bildern gehören nicht zum Lieferumfang.

Produktinformationen

Das Hallenbüro HS4-6535 auf Stahlbau von becker.raumsysteme® bietet Ihnen eine durchdachte Lösung zur optimalen Nutzung Ihrer Lager- und Produktionsflächen. Mit einer großzügigen Grundfläche von 22,75 m² und den kompakten Abmessungen von 6,5 x 3,5 m ist dieses Büro nicht nur funktional, sondern auch eine wertvolle Erweiterung Ihres Arbeitsumfeldes. Durch die Erhöhung des Büros auf einer stabilen Stahlbaubühne gewinnen Sie zusätzliche Lagerfläche unterhalb der Räumlichkeit, was Ihre Effizienz steigert und Platz für andere betriebliche Aktivitäten schafft.

Stellen Sie sich vor, wie Ihr Team in einem modernen, hellen Büro arbeitet, das nicht nur den Anforderungen an einen Arbeitsplatz gerecht wird, sondern auch eine angenehme Atmosphäre für konzentriertes Arbeiten schafft. Das Hallenbüro auf Stahlbau punktet mit einem ansprechenden Design und hochwertigen Materialien, sodass Ihre Mitarbeiter in einem Umfeld tätig sind, das sowohl Komfort als auch Professionalität ausstrahlt.

Die einzigartigen Argumente dieses Produkts sind zahlreich: Die Konstruktion aus warmgewalzten Stahlprofilen sorgt für höchste Stabilität und Langlebigkeit. Die flexible Gestaltung ermöglicht es Ihnen, individuelle Anpassungen vorzunehmen - sei es hinsichtlich der Glastypen oder der Türkonfiguration. Die Verwendung von Floatglas mit einer Dicke von 5 mm gewährleistet nicht nur eine optimale Sicht nach außen, sondern auch eine hervorragende Akustik durch die Mineralfaserakustikdecke. Dies fördert eine ruhige Arbeitsumgebung und steigert die Produktivität.

Im Detail umfasst das Hallenbüro auf Stahlbau eine Gesamthöhe von 5.527 mm sowie eine lichte Raumhöhe von 2.510 mm. Die Wandhöhe beträgt 2.790 mm, was ein luftiges und offenes Raumgefühl vermittelt. Der Bodenbelag aus PVC-Fliesen in Anthrazit ist nicht nur optisch ansprechend, sondern auch pflegeleicht und robust - ideal für industrielle Anwendungen. Der Zugang zum Büro erfolgt über einen stabilen Treppenaufgang mit Geländer und Holztrittstufen aus Mehrschichtplatten.

Beispiele für die Anwendung des Hallenbüros auf Stahlbau sind vielfältig: Ob als Verwaltungsbüro in einer Lagerhalle, als Besprechungsraum oder als Rückzugsort für Ihr Team - die Einsatzmöglichkeiten sind nahezu unbegrenzt. Dieses modulare System ist die perfekte Lösung für Unternehmen, die Wert auf Flexibilität und Effizienz legen.

Um das Vertrauen unserer Kunden zu stärken, bieten wir umfassende Unterstützung bei der Montage durch unsere Montagepartner an, wobei die Lieferkosten innerhalb Deutschlands bereits in den Shoppreisen enthalten sind. Bitte beachten Sie, dass die Prüfung der Statik nicht im Angebot enthalten ist, jedoch auf Wunsch separat erworben werden kann.

Zögern Sie nicht länger! Nutzen Sie die Vorteile eines Hallenbüros auf Stahlbau HS4-6535 und optimieren Sie Ihre Arbeitsbedingungen nachhaltig. Kontaktieren Sie uns noch heute für weitere Informationen oder um Ihre individuelle Lösung zu planen!