Hallenbüro als Doppelstock 4-seitig 6,50 x 3,50 m 22,75 m² (HD4-6535)

EUR 30.640,00

zzgl. 19 % USt
Artikelnr.
HD4-6535
4-seitig 22,75 m² 6545x3545 mm Lieferzeit: 5-6 Wochen
Unsere Fachberater an der Hotline stehen Ihnen bei Fragen zu unseren Produkten gern zur Verfügung. Sie erreichen die Hotline zu unseren Geschäftszeiten unter 0571 / 50 54 5-25
Hallenbüro doppelstöckigMeisterbürosSystemräumeLagerbürosMeisterkabinenSystem RS 45Systemtrennwändebis 35m² (mittel)

Produktbeschreibung

Position

Menge

Bezeichnung

A

1 Stk.

Zweigeschossiges Hallenbüro - becker.raumsysteme®

www.becker-raumsysteme.de/system-rs-45/

Bestehend aus Stahlbaubühne, Erd- und Obergeschoss
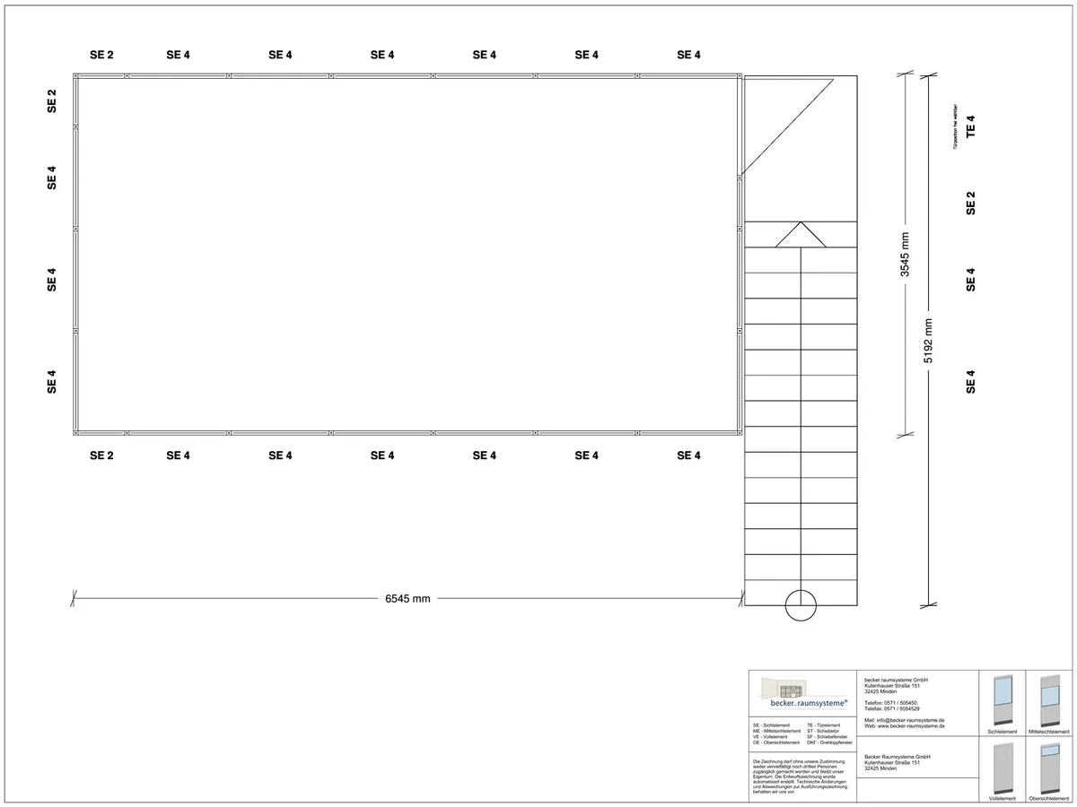
Gesamthöhe der Anlage 5.527 mm (zzgl. Montagefreiheit)

Erdgeschossausführung als Trennwand
4-seitig, Abmessung: L x T = 6.545 x 3.545 mm
Innenmaß: L x T = 6.455 x 3.455 mm
lichte Raumhöhe 2.510 mm, Wandhöhe 2.790 mm

Obergeschossausführung als Hallenbüro
4-seitig, Abmessung: L x T = 6.545 x 3.545 mm

A.1

1 Stk.

Stahlbaubühne - becker.raumsysteme®

Bühnenlänge: 6575 mm, Bühnenbreite: 3575 mm, Bühnenhöhe: 2810 mm, Bühnenfläche: ca. 25,17 m² einschl. Treppenpodest, Lichte Bühnenhöhe: 2630 mm, Oberkante Bühnenbelag: 2850 mm, , Belastung: 300 kg/m² gleichmäßig verteilte Last, Flächenpressung der Stützen ca. 8,59 kg/cm², Stützenlast ca. 2610 kg, Anzahl Stützen: 6 Stk., , Ausführung: , Die Stahlbaubühne besteht aus Haupt- und Nebenträgern, stehend auf Stützen. Anzahl und Größe der Felder nach statischer Auslegung.

A.2

24,86 m²

Bühnenbelag, Spanplatte, P6, 38 mm, Oberflächen roh/roh

Verlegeplatte ohne Zuschnitt, Verlegung mit Nut und Feder, Der Stoß der Platten erfolgt immer auf einem Träger

A.3

24,86 m²

PVC-Fliesen, 608 x 608 x 2 mm, Farbe anthrazit 1060

komplett mit Kleber und Schweißdraht, antistatisch, Elastischer homogener PVC-Bodenbelag, einschichtig, richtungsorientiert, durchgehend marmoriert, Brandklasse B1, Nutzungsklasse 34 + 43, Beanspruchungsklasse K5

A.4

1 Stk.

Treppenaufgang - becker.raumsysteme®

Anschluß über Treppenpodest an Stahlbaubühne, , Treppenausführung:, Podesthöhe: 2.850 mm, Treppenbreite: 1.090 mm einschl. Geländer , Treppenlaufbreite: 1.000 mm nutzbar , Treppenlänge: ca. 5.186 mm einschl. Treppenpodest , Treppenneigung: 36° gemäß ZH 1/113 , (Richtlinien der Gewerblichen Berufsgenossenschaften) , , Ausführung: , Stahlwangen mit beidseitigem Sicherheitsgeländer, Treppenpodest und Holztrittstufen

A.5

1 Stk.

Trennwand - becker.raumsysteme®

Trennwand (Untergeschoss), , (Materialaufstellung in Unterpositionen)

A.6

20,18 lfm

Deckenschiene 44 mm

Zur Aufnahme der Trennwand

A.7

17 Stk.

Mittelsichtelement, Raster 4 - 1.000 x 2.790 mm

verglast ab 1.090 mm bis 2.055 mm in, Floatglas 5 mm dick, darüber Ausführung als Vollelement

A.8

4 Stk.

Mittelsichtelement, Raster 2 - 500 x 2.790 mm

verglast ab 1.090 mm bis 2.055 mm in, Floatglas 5 mm dick, darüber Ausführung als Vollelement

A.9

1 Stk.

ZK Flügeltür für Raster 4, DIN-L OK: 2055 mm

Türflügel mit Glasausschnitt, lichte Öffnung 813 x 1.984 mm, vorgerichtet für Profilzylinder (35 / 30 = 65 mm Länge), inkl. Metalltürblatt & Türzarge

A.10

1 Stk.

Aluminium-Drückergarnitur - Kurzschild

außen Drücker, innen Drücker

A.11

1 Stk.

Türaufbau-Mittelsichtelement, Raster 4 - 1.000 x 2.790 mm

verglast bis 2.500 mm in Floatglas 5 mm dick darüber Ausführung als Vollelement

A.12

23,20 m²

MFA-Decke ohne Tragekonstruktion

Mineralfaserakustikdecke, abgehängtes System, Struktur Fresko, Rastermaß 625 x 625 mm, einschl. Abhängematerial

A.13

1 Stk.

Hallenbüro - becker.raumsysteme®

Hallenbüro (Obergeschoss), , (Materialaufstellung in Unterpositionen)

A.14

17 Stk.

Sichtelement, Raster 4 - 1.000 x 2.550 mm

ab Brüstungshöhe 1.090 mm verglast in, Floatglas 5 mm dick

A.15

4 Stk.

Sichtelement, Raster 2 - 500 x 2.550 mm

ab Brüstungshöhe 1.090 mm verglast in, Floatglas 5 mm dick

A.16

1 Stk.

ZK Flügeltür für Raster 4, DIN-L OK: 2055 mm

Türflügel mit Glasausschnitt, lichte Öffnung 813 x 1.984 mm, vorgerichtet für Profilzylinder (35 / 30 = 65 mm Länge), inkl. Metalltürblatt & Türzarge

A.17

1 Stk.

Aluminium-Drückergarnitur - Kurzschild

außen Drücker, innen Drücker

A.18

1 Stk.

Türaufbau-Sichtelement, Raster 4 - 1.000 x 2.550 mm

verglast in Floatglas 5 mm dick

A.19

23,20 m²

Deckenkonstruktion für Hallenbüro

einschl. Deckenauflagen und Deckenträger, Erweiterung der Decke separat aufgeführt

A.20

23,20 m²

Erweiterung Deckenkonstruktion, MFA-Decke

Mineralfaserakustikdecke, abgehängtes System, Struktur Fresko, Rastermaß 625 x 625 mm, einschl. Abhängematerial

A.21

23,20 m²

Erweiterung Deckenkonstruktion, Staubabdeckung

Abdeckung mit Spanplatte, P5, 25 mm, NICHT für eine Begehbarkeit ausgelegt, Ausführung nicht als Lagerfläche geeignet

 

 

Lieferung / Montage / Elektrischer Anschluß

Die Lieferung der Hallenbüros erfolgt als Bausatz in Einzelteilen. Die Lieferkosten innerhalb Deutschland (Festland) sind frei Bordsteinkante im Preis enthalten. Das Abladen der Einzelteile auf Paletten erfolgt bauseits. Die Montage durch erfahrene Fachmonteure vor Ort erfolgt gegen Aufpreis. Elektroinstallationen gehören nicht zum Montageumfang. Die Einrichtungsgegenstände auf den Bildern gehören nicht zum Lieferumfang.

Produktinformationen

Das zweigeschossige Hallenbüro als Doppelstocklösung HD4-6535 von becker-raumsysteme® bietet Ihnen die ideale Antwort auf die Herausforderungen moderner industrieller Arbeitsumgebungen. Mit einer großzügigen Grundfläche von 22,75 m² und den Abmessungen von 6,5 x 3,5 m ermöglicht dieses freistehende Büro nicht nur eine effiziente Raumnutzung, sondern schafft auch einen strukturierten und produktiven Arbeitsbereich. Die durchdachte Konstruktion fördert die Konzentration Ihrer Mitarbeiter und steigert somit deren Produktivität.

Stellen Sie sich vor, wie Ihre Teams in einem lichtdurchfluteten und ergonomisch gestalteten Raum arbeiten, der ihnen die nötige Ruhe bietet, um ihre Aufgaben effizient zu erledigen. Unser Hallenbüro kombiniert Funktionalität mit einem ansprechenden Design, das sowohl für die Mitarbeiter als auch für Besucher einladend wirkt. Durch die Verwendung von hochwertigen Materialien und modernen Bauweisen wird ein angenehmes Arbeitsklima geschaffen, das Motivation und Kreativität fördert.

Die einzigartigen Argumente dieses Hallenbüros liegen in seiner Flexibilität und Anpassungsfähigkeit. Das freistehende Design erlaubt eine individuelle Positionierung innerhalb Ihrer Produktionshalle oder Lagerfläche. Die gesamte Konstruktion besteht aus robusten Stahlprofilen, die nicht nur Langlebigkeit garantieren, sondern auch eine schnelle Montage ermöglichen. Das Erdgeschoss fungiert als Trennwand und sorgt somit für eine klare Abgrenzung der Arbeitsbereiche, während das Obergeschoss als vollwertiges Büro dient.

Mit einer lichten Raumhöhe von 2.510 mm im Innenbereich und einer Gesamtaußenhöhe von 2.677 mm bietet das Hallenbüro ausreichend Platz für alle notwendigen Büromöbel und -einrichtungen. Die Stahlbaubühne hat eine Höhe von 2.810 mm und ist mit einem hochwertigen Bodenbelag aus PVC-Fliesen in Anthrazit ausgestattet. Der Treppenaufgang inklusive Geländer gewährleistet einen sicheren Zugang zum Obergeschoss.

Dieses Hallenbüro eignet sich ideal für Unternehmen in der Industrie, die ihre Lager- oder Produktionsflächen optimal nutzen möchten. Ob als Besprechungsraum, Arbeitsstätte oder Verwaltungsbüro - die Einsatzmöglichkeiten sind vielfältig und können individuell angepasst werden.

Vertrauen Sie auf unsere fast 30-jährige Erfahrung in der Bereitstellung modularer Raumsysteme für industrielle Anwendungen. Die Lieferung innerhalb Deutschlands ist bereits in unseren Shoppreisen enthalten, während unsere Montagepartner gegen Aufpreis eine fachgerechte Montage vor Ort übernimmt. Für Elektroinstallationen empfehlen wir die Zusammenarbeit mit einem Fachbetrieb am Standort des Kunden.

Zögern Sie nicht länger! Erleben Sie die Vorteile eines modernen Hallenbüros auf Bühne und optimieren Sie Ihre Betriebsabläufe durch effiziente Raumnutzung. Kontaktieren Sie uns noch heute, um mehr über unsere maßgeschneiderten Lösungen zu erfahren!