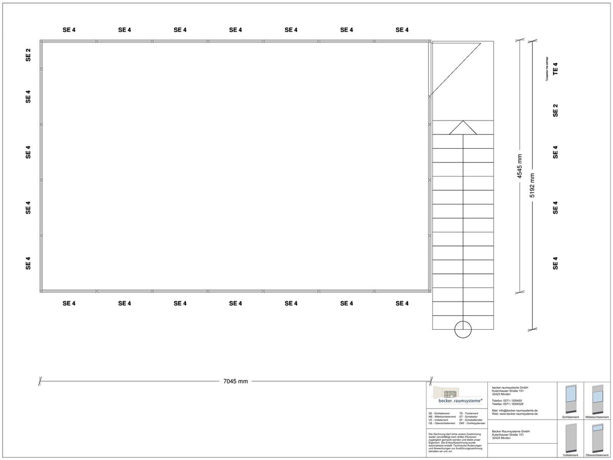
Hallenbüro auf Stahlbau 4-seitig 7,00 x 4,50 m 31,5 m² (HS4-7045)

auf Anfrage

zzgl. 19 % USt
Artikelnr.
HS4-7045
4-seitig 31,5 m² 7045x4545 mm Lieferzeit: 5-6 Wochen
Unsere Fachberater an der Hotline stehen Ihnen bei Fragen zu unseren Produkten gern zur Verfügung. Sie erreichen die Hotline zu unseren Geschäftszeiten unter 0571 / 50 54 5-25
Hallenbüro auf BühneMeisterbürosSystemräumeLagerbürosMeisterkabinenSystem RS 45Systemtrennwändebis 35m² (mittel)

Produktbeschreibung

Position

Menge

Bezeichnung

A

1 Stk.

Hallenbüro auf Stahlbaubühne - becker.raumsysteme®

www.becker-raumsysteme.de/system-rs-45/

Bestehend aus Stahlbaubühne und Obergeschoss
Gesamthöhe der Anlage 5.527 mm

Obergeschossausführung als Hallenbüro
4-seitig, Abmessung: L x T = 7.045 x 4.545 mm
Innenmaß: L x T = 6.955 x 4.455 mm
lichte Raumhöhe 2.510 mm, Wandhöhe 2.790 mm

A.1

1 Stk.

Stahlbaubühne - becker.raumsysteme®

Bühnenlänge: 7075 mm, Bühnenbreite: 4575 mm, Bühnenhöhe: 2810 mm, Bühnenfläche: ca. 34,03 m² einschl. Treppenpodest, Lichte Bühnenhöhe: 2590 mm, Oberkante Bühnenbelag: 2850 mm, , Belastung: 300 kg/m² gleichmäßig verteilte Last, Flächenpressung der Stützen ca. 11,74 kg/cm², Stützenlast ca. 3568 kg, Anzahl Stützen: 6 Stk., , Ausführung: , Die Stahlbaubühne besteht aus Haupt- und Nebenträgern, stehend auf Stützen. Anzahl und Größe der Felder nach statischer Auslegung.

A.2

33,68 m²

Bühnenbelag, Spanplatte, P6, 38 mm, Oberflächen roh/roh

Verlegeplatte ohne Zuschnitt, Verlegung mit Nut und Feder, Der Stoß der Platten erfolgt immer auf einem Träger

A.3

33,68 m²

PVC-Fliesen, 608 x 608 x 2 mm, Farbe anthrazit 1060

komplett mit Kleber und Schweißdraht, antistatisch, Elastischer homogener PVC-Bodenbelag, einschichtig, richtungsorientiert, durchgehend marmoriert, Brandklasse B1, Nutzungsklasse 34 + 43, Beanspruchungsklasse K5

A.4

1 Stk.

Treppenaufgang - becker.raumsysteme®

Anschluß über Treppenpodest an Stahlbaubühne, , Treppenausführung:, Podesthöhe: 2.850 mm, Treppenbreite: 1.090 mm einschl. Geländer , Treppenlaufbreite: 1.000 mm nutzbar , Treppenlänge: ca. 5.186 mm einschl. Treppenpodest , Treppenneigung: 36° gemäß ZH 1/113 , (Richtlinien der Gewerblichen Berufsgenossenschaften) , , Ausführung: , Stahlwangen mit beidseitigem Sicherheitsgeländer, Treppenpodest und Holztrittstufen

A.5

1 Stk.

Hallenbüro - becker.raumsysteme®

Hallenbüro (Obergeschoss), , (Materialaufstellung in Unterpositionen)

A.6

21 Stk.

Sichtelement, Raster 4 - 1.000 x 2.550 mm

ab Brüstungshöhe 1.090 mm verglast in, Floatglas 5 mm dick

A.7

2 Stk.

Sichtelement, Raster 2 - 500 x 2.550 mm

ab Brüstungshöhe 1.090 mm verglast in, Floatglas 5 mm dick

A.8

1 Stk.

ZK Flügeltür für Raster 4, DIN-L OK: 2055 mm

Türflügel mit Glasausschnitt, lichte Öffnung 813 x 1.984 mm, vorgerichtet für Profilzylinder (35 / 30 = 65 mm Länge), inkl. Metalltürblatt & Türzarge

A.9

1 Stk.

Aluminium-Drückergarnitur - Kurzschild

außen Drücker, innen Drücker

A.10

1 Stk.

Türaufbau-Sichtelement, Raster 4 - 1.000 x 2.550 mm

verglast in Floatglas 5 mm dick

A.11

32,02 m²

Deckenkonstruktion für Hallenbüro

einschl. Deckenauflagen und Deckenträger, Erweiterung der Decke separat aufgeführt

A.12

32,02 m²

Erweiterung Deckenkonstruktion, MFA-Decke

Mineralfaserakustikdecke, abgehängtes System, Struktur Fresko, Rastermaß 625 x 625 mm, einschl. Abhängematerial

A.13

32,02 m²

Erweiterung Deckenkonstruktion, Staubabdeckung

Abdeckung mit Spanplatte, P5, 25 mm, NICHT für eine Begehbarkeit ausgelegt, Ausführung nicht als Lagerfläche geeignet

 

 

Lieferung / Montage / Elektrischer Anschluß

Die Lieferung der Hallenbüros erfolgt als Bausatz in Einzelteilen. Die Lieferkosten innerhalb Deutschland (Festland) sind frei Bordsteinkante im Preis enthalten. Das Abladen der Einzelteile auf Paletten erfolgt bauseits. Die Montage durch erfahrene Fachmonteure vor Ort erfolgt gegen Aufpreis. Elektroinstallationen gehören nicht zum Montageumfang. Die Einrichtungsgegenstände auf den Bildern gehören nicht zum Lieferumfang.

Produktinformationen

Das HS4-7045 Hallenbüro auf Stahlbau mit einer Grundfläche von 31,5 m² stellt eine optimale Lösung für Unternehmen dar, die Wert auf effiziente Raumnutzung legen. Durch die innovative Konstruktion wird nicht nur wertvoller Platz in Ihrer Lagerhalle oder Produktionsstätte erhalten, sondern auch ein moderner, funktionaler Arbeitsbereich geschaffen, der den Anforderungen industrieller Umgebungen gerecht wird. Sie profitieren von einer durchdachten Gestaltung, die den Arbeitsalltag erleichtert und gleichzeitig einen professionellen Eindruck hinterlässt.

Stellen Sie sich vor, wie Ihre Mitarbeiter in einem hellen und offenen Büro arbeiten können, das sowohl Komfort als auch Funktionalität bietet. Das großzügige Raumangebot und die individuelle Gestaltung des Hallenbüros fördern die Produktivität und schaffen eine angenehme Arbeitsatmosphäre. Die Möglichkeit, das Büro auf einer Stahlbaubühne zu errichten, ermöglicht es Ihnen, den verfügbaren Raum optimal zu nutzen und gleichzeitig eine klare Trennung zwischen Lager- und Büroflächen zu schaffen.

Die einzigartigen Argumente dieses Hallenbüros liegen in seiner flexiblen Bauweise und der robusten Materialauswahl. Mit Abmessungen von 7.045 x 4.545 mm im Obergeschoss und einer lichte Raumhöhe von 2.510 mm bietet es ausreichend Platz für Arbeitsplätze, Besprechungen oder administrative Tätigkeiten. Die Stahlbaubühne erreicht eine Höhe von 2.810 mm und sorgt dafür, dass der gesamte Raum effizient genutzt werden kann. Hochwertige Materialien wie warmgewalzte Stahlprofile und ein widerstandsfähiger Bühnenbelag aus Spanplatte P6 garantieren Langlebigkeit und Stabilität.

Mit Sichtelementen aus 5 mm dickem Floatglas wird nicht nur für eine ansprechende Optik gesorgt, sondern auch für eine gute Lichtdurchlässigkeit, die das Arbeitsumfeld freundlich gestaltet. Die Ausstattung umfasst zudem einen sicheren Treppenaufgang mit Geländer sowie Holztrittstufen aus Mehrschichtplatten, was den Zugang zum Obergeschoss erleichtert. Für zusätzliche Akustikdämmung sorgt die Mineralfaserakustikdecke, die einen ruhigen Arbeitsplatz gewährleistet.

Anwendungsbeispiele sind vielfältig: Ob als Verwaltungsbüro innerhalb einer Lagerhalle, als Projektbüro in Produktionsstätten oder zur Schaffung eines separaten Bereichs für technische Arbeiten - das Hallenbüro passt sich Ihren individuellen Bedürfnissen an. Es ist ideal für Unternehmen, die schnelle Lösungen benötigen, um ihre Abläufe zu optimieren und gleichzeitig den Arbeitskomfort zu erhöhen.

Vertrauen Sie auf die Expertise von becker.raumsysteme®, einem renommierten Anbieter modularer Raumsysteme seit fast 30 Jahren. Unsere Produkte zeichnen sich durch Qualität und Zuverlässigkeit aus. Zudem sind die Lieferkosten innerhalb Deutschlands bereits in den Shoppreisen enthalten, was Ihnen zusätzliche Planungssicherheit bietet. Die Montage erfolgt durch unsere Montagepartner vor Ort gegen Aufpreis, sodass Sie sich um nichts kümmern müssen.

Nutzen Sie die Gelegenheit, Ihr Unternehmen mit einem professionellen Hallenbüro auf Stahlbau zu bereichern! Kontaktieren Sie uns noch heute für weitere Informationen oder um ein individuelles Angebot zu erhalten. Lassen Sie uns gemeinsam Ihre Arbeitsumgebung optimieren und profitieren Sie von den zahlreichen Vorzügen unseres Produkts!