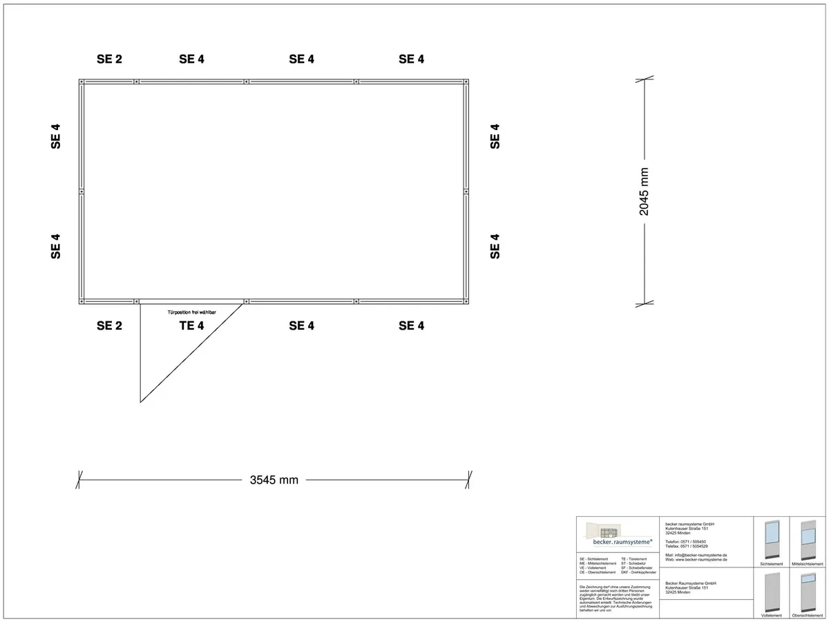
Mobiles Hallenbüro 4-seitig 3,50 x 2,00 m 7 m² (HM4-3520)

EUR 7.360,00

zzgl. 19 % USt
Artikelnr.
HM4-3520
4-seitig 7 m² 3545x2045 mm Lieferzeit: 4-5 Wochen
Unsere Fachberater an der Hotline stehen Ihnen bei Fragen zu unseren Produkten gern zur Verfügung. Sie erreichen die Hotline zu unseren Geschäftszeiten unter 0571 / 50 54 5-25
Mobiles HallenbüroMeisterbürosSystemräumeLagerbürosMeisterkabinenSystem RS 45Systemtrennwändebis 20m² (klein)

Produktbeschreibung

Position

Menge

Bezeichnung

A

1 Stk.

Hallenbüro auf Staplerpodest - becker.raumsysteme®

4-seitig, Abmessung: L x T = 3.545 mm x 2.045 mm, lichte Raumhöhe 2.510 mm, Außenhöhe 2.850 mm, , (Materialaufstellung in Unterpositionen)

A.1

7,42 m²

Gabelstaplerpodest 187 mm hoch

Bestehend aus Rohrrahmen mit umlaufender Blechblende , und Öffnungen für Staplergabeln. , Öffnungsmaß der Staplerschuhe 150/70 mm, , Belag aus Spanplatte P5, 25 mm dick, , PVC-Fliesen, 608 x 608 x 2 mm, Farbe Anthrazit 1060, , Bodenbelastbarkeit: 200 kg/m² gleichmäßig verteilte Last, , max. Einzellast von 100 kg (auf Fläche 5 x 5 cm), , Das Podest ist ausgelegt für den flurebenen Transport eines , leeren Raumsystems mittels geeignetem Gabelstapler.

A.2

9 Stk.

Sichtelement, Raster 4 - 1.000 x 2.550 mm

ab Brüstungshöhe 1.090 mm verglast in, Verbundsicherheitsglas 6 mm dick

A.3

2 Stk.

Sichtelement, Raster 2 - 500 x 2.550 mm

ab Brüstungshöhe 1.090 mm verglast in, Verbundsicherheitsglas 6 mm dick

A.4

1 Stk.

Türaufbau-Sichtelement, Raster 4 - 1.000 x 2.550 mm

verglast in Verbundsicherheitsglas 6 mm dick

A.5

1 Stk.

ZK Flügeltür für Raster 4, DIN-L OK: 2055 mm

Türflügel mit Glasausschnitt, lichte Öffnung 813 x 1.984 mm, vorgerichtet für Profilzylinder (35 / 30 = 65 mm Länge), inkl. Metalltürblatt & Türzarge

A.6

1 Stk.

Aluminium-Drückergarnitur - Kurzschild

außen Drücker, innen Drücker

A.7

1 Stk.

Deckenkonstruktion für Hallenbüro

einschl. Deckenauflagen und Deckenträger, Erweiterung der Decke separat aufgeführt

A.8

7,25 m²

Erweiterung Deckenkonstruktion, MFA-Decke

Mineralfaserakustikdecke, abgehängtes System, Struktur Fresko, Rastermaß 625 x 625 mm, einschl. Abhängematerial

A.9

7,25 m²

Erweiterung Deckenkonstruktion, Staubabdeckung

Abdeckung mit Spanplatte, P5, 25 mm,

NICHT für eine Begehbarkeit ausgelegt,

Ausführung nicht als Lagerfläche geeignet

 

 

Lieferung / Montage / Elektrischer Anschluß

Die Lieferung der Hallenbüros erfolgt als Bausatz in Einzelteilen. Die Lieferkosten innerhalb Deutschland (Festland) sind frei Bordsteinkante im Preis enthalten. Das Abladen der Einzelteile auf Paletten erfolgt bauseits. Die Montage durch erfahrene Fachmonteure vor Ort erfolgt gegen Aufpreis. Elektroinstallationen gehören nicht zum Montageumfang. Die Einrichtungsgegenstände auf den Bildern gehören nicht zum Lieferumfang.

Produktinformationen

Das mobile Hallenbüro Typ HM4-3520 bietet Ihnen die ideale Lösung für Ihre Anforderungen an einen flexiblen und funktionalen Arbeitsplatz in industriellen Umgebungen. Mit seinen kompakten Abmessungen von 3.545 x 2.045 m und einer lichtdurchlässigen Raumhöhe von 2,51 m schafft es nicht nur einen komfortablen Arbeitsbereich, sondern optimiert auch die Flächennutzung innerhalb Ihrer Produktionshalle. Durch den Einsatz dieses modulares Baukastensystems profitieren Sie von einer schnellen und unkomplizierten Montage, die sich nahtlos in Ihre bestehende Infrastruktur integrieren lässt.

Stellen Sie sich vor, wie Ihre Mitarbeiter in einem modernen und hellen Arbeitsumfeld agieren können, das sowohl Rückzugsmöglichkeiten als auch eine klare Sicht auf die Produktion bietet. Das HM4-3520 fördert nicht nur die Produktivität, sondern steigert auch das Wohlbefinden Ihrer Mitarbeiter. Die emotionalen Vorteile eines gut gestalteten Arbeitsplatzes sind unbestreitbar: Ein angenehmes Arbeitsklima motiviert und inspiriert Ihr Team zu Höchstleistungen.

Die einzigartigen Verkaufsargumente dieses Hallenbüros liegen in seiner robusten Bauweise und der hohen Flexibilität. Der stabile Rohrrahmen mit umlaufender Blechblende gewährleistet Langlebigkeit und Sicherheit, während die 25 mm starke Spanplatte für die Bodenkonstruktion eine Belastbarkeit von bis zu 200 kg/m² ermöglicht. Auch bei punktuellen Lasten bleibt das Büro stabil - selbst schwere Materialien können problemlos abgestellt werden. Die Verwendung von 6 mm dickem Verbundsicherheitsglas sorgt für eine hervorragende Lichtdurchlässigkeit und schafft ein offenes Arbeitsumfeld.

Das mobile Hallenbüro ist zudem mit einem Gabelstaplerpodest ausgestattet, das eine Höhe von 187 mm aufweist und somit einen einfachen Zugang mit dem Stapler ermöglicht. Das Tür-Sichtelement mit Glasausschnitt sowie das Metalltürblatt bieten nicht nur Funktionalität, sondern auch ein modernes Design. Auf Wunsch können alternative Glastypen gewählt werden, um individuelle Anforderungen zu erfüllen.

Anwendungsbeispiele für das HM4-3520 sind vielfältig: Ob als temporäres Büro für Projektteams, als Besprechungsraum in der Lagerhalle oder als Rückzugsort für Mitarbeiter - die Möglichkeiten sind nahezu unbegrenzt. Dieses modulare Raumsystem passt sich Ihren Bedürfnissen an und lässt sich bei Bedarf leicht erweitern oder umgestalten. Vertrauen Sie auf Becker Raumsysteme GmbH und profitieren Sie von einem Produkt, das durch Qualität und Effizienz überzeugt. Unsere transparenten Lieferkosten innerhalb Deutschlands sind bereits in den Shoppreisen enthalten, sodass Sie keine versteckten Kosten befürchten müssen. Darüber hinaus steht Ihnen unsere Montagepartner für die fachgerechte Montage zur Verfügung - so können Sie sicher sein, dass alles reibungslos abläuft.

Nutzen Sie die Chance, Ihr Unternehmen durch ein mobiles Hallenbüro zu bereichern! Kontaktieren Sie uns noch heute für weitere Informationen oder lassen Sie sich von unseren Experten beraten. Gestalten Sie Ihre Arbeitswelt effizienter und flexibler - mit dem mobilen Hallenbüro Typ HM4-3520 von Becker Raumsysteme GmbH.